Central Courtyard House for Lisha at Kanjirathani, Palakkad

     പൂതത്തിൻ്റെ നാട്ടിലെ ഒരു പുതിയകാല നാലുകെട്ടിൻ്റെ കഥ!

     കെട്ടിടങ്ങൾ കാലാവസ്ഥയെ അതിൻ്റെ ആർക്കിടെക്ചർ കൊണ്ട് മാത്രം നേരിട്ടിരുന്ന കാലത്തെ കാര്യമാണ്; ഉഷ്ണമേഖലാ പ്രദേശങ്ങളിൽ കെട്ടിടങ്ങളിലെ ചൂടുകുറയ്ക്കാൻ അന്ന് പലതരം മാർഗ്ഗങ്ങൾ ഉപയോഗിച്ചിരുന്നു. വരാന്തകളും വലിയ roof-overhang കളും കൊടുത്ത് വല്ലാതെ വെയിലടിയ്ക്കുന്ന തെക്ക്-പടിഞ്ഞാറ് ഭാഗങ്ങളിലെ ചുമരുകൾ സംരക്ഷിക്കുക, ചൂട് വായു ഉള്ളിൽ തങ്ങി നിൽക്കാതെ പുറത്ത് പോകാൻ നടുമുറ്റങ്ങൾ ഉൾപ്പെടുത്തിയുള്ള പ്ലാനിംഗ് രീതികൾ തിരഞ്ഞെടുക്കുക, കാറ്റിനെ അകത്തളത്തിലേയ്ക്ക് കൊണ്ടുവരുന്ന wind-catchers ഉപയോഗിയ്ക്കുക, ചൂടുവായുവിനെ മുകളിലേയ്ക്ക് ഉൾക്കൊള്ളുന്ന ചരിഞ്ഞ മേൽക്കൂരകൾ കൊടുക്കുക എന്നിവ അവയിൽ ചിലതാണ്. കെട്ടിടത്തിൻ്റെ പൊള്ളയായ ഒരു പുറന്തോട് നിർമ്മിച്ച് യന്ത്രങ്ങളുടെ സഹായത്തിൽ മാത്രം അത് വാസയോഗ്യമാക്കുന്ന ഇക്കാലത്ത് അതിൽ നിന്ന് പഠിക്കാൻ ഏറെയുണ്ട്. ഇന്നത്തെ സാങ്കേതിക മികവ് അവയിൽ ഉൾചേർക്കുമ്പോഴാണ് നമുക്ക് മികച്ച കെട്ടിടങ്ങൾ നിർമ്മിക്കാൻ സാധിക്കുക എന്ന് ഞങ്ങൾ കരുതുന്നു

There was a time when buildings relied solely on their architectural design to withstand the weather. In tropical regions, various methods were employed to reduce heat: verandas and large roof overhangs protected south-west facing walls from intense sun exposure, courtyards allowed hot air to escape, wind-catchers brought in cool breezes, and sloping roofs directed hot air upwards. These traditional techniques offer valuable lessons, especially as modern buildings often rely heavily on machinery to maintain comfort. By combining today's technological advancements with the wisdom of the past, we can create better buildings.

This house, designed with a central courtyard, exemplifies the traditional 'nalukettu' style. For Malayalis, 'nadumutam' and 'nalukettu' evoke not just architectural concepts but memories of a bygone era. Some view these designs with nostalgia, while others see them as timeless solutions perfectly suited for tropical climates. The 'nalukettu' design is versatile, adaptable for both small and large buildings, and remains relevant today.

LocationKanjirathani, Palakkad, Kerala
Year of Completion2023
Built-up Area3,200 Sq.Ft.
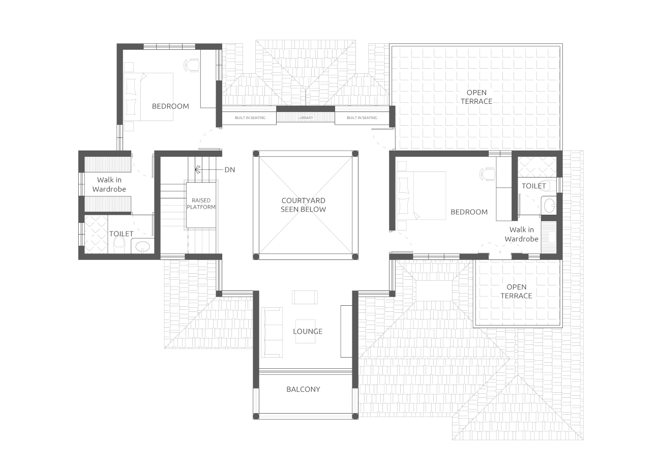
Ground Floor Plan of Central Courtyard House
Ground Floor Plan
First Floor Plan of Central Courtyard House
First Floor Plan

     ഇത് നടുമുറ്റം കേന്ദ്രമാക്കി ഞങ്ങൾ രൂപകൽപ്പന ചെയ്ത ഒരു വീടാണ്. നടുമുറ്റവും നാലുകെട്ടും നമ്മൾ മലയാളികൾക്ക് വെറും വാക്കുകൾ അല്ല. ഒരു കാലത്തിൻ്റെ ഓർമ്മകൾ കൂടിയാണ്. ചിലർ അത് ഗൃഹാതുര സ്മരണകൾ ആയി മനസ്സിൽ താലോലിക്കുമ്പോൾ മറ്റു ചിലർ അത് അതിജീവിച്ച ഒരു കെട്ടകാലത്തിൻ്റെ ബാക്കിപത്രമായി കാണുന്നു. അതിൽ തർക്കമൊന്നും ഇല്ലെങ്കിലും നാലുകെട്ടിൻ്റെ ഡിസൈൻ ഫിലോസഫി tropical climate ന് ഏറ്റവും ഉചിതമായ ഒന്നാണ്. ചെറുതും വലുതുമായ കെട്ടിടങ്ങൾക്ക് ഒരുപോലെ ഉപയോഗിക്കാവുന്ന അത് പുതിയകാലത്തിലേയ്ക്ക് എളുപ്പം പൊരുത്തപ്പെടുത്തി എടുക്കാവുന്നതുമാണ്.

     മറ്റൊരു നാലുകെട്ടിനെ നമ്മുടെ മനസ്സിൽ പതിപ്പിച്ച എം.ടി.വാസുദേവൻ നായരുടെ നാടിനും, പൂതപ്പാട്ടിലൂടെ വള്ളുവനാടിൻ്റെ സ്വന്തം പൂതത്തിൻ്റെ കഥ അവിസ്മരണീയമാക്കിയ ഇടശ്ശേരിയുടെ നാടിനും ഇടയ്ക്കാണ് ഈ വീട് സ്ഥിതിചെയ്യുന്ന സ്ഥലം. തെങ്ങും കവുങ്ങും ഇടതൂർന്നു നിൽക്കുന്ന പുരയിടവും, അവിടേക്കുള്ള നീണ്ട കല്ലിടവഴിയും തരുന്ന തികഞ്ഞ ഗ്രാമാന്തരീക്ഷം. പുറത്തെ ചൂടിനെ വെല്ലുന്ന അകത്തെ ചൂടുമായി ബുദ്ധിമുട്ടിക്കുന്ന ഇപ്പൊൾ താമസിയ്ക്കുന്ന വീടും, അവരുടെ തന്നെ പണ്ടത്തെ നാലുകെട്ടിൻ്റെ പറഞ്ഞു കേട്ട കഥകളും ഓർമ്മയിൽ ഉള്ളതുകൊണ്ട് നടുമുറ്റമൊക്കെയുള്ള ഒരു നാലുകെട്ട് വീട് മതി എന്നത് വീട്ടുകാരുടെ ആവശ്യമായിരുന്നു. അതല്ലെങ്കിൽ തന്നെ, ഇത്തരം ഒരു പ്രോജക്ടിന് നമുക്ക് ഇൻ്റർനാഷണൽ ശൈലിയുടെ ആവശ്യം ഉണ്ടോ? ഇല്ലെന്നു ഞങ്ങളും കരുതുന്നു. പ്രാദേശികമായി ലഭിക്കുന്ന വസ്തുക്കൾ ഉപയോഗിച്ച്, അനാവശ്യ ആർഭാടങ്ങൾ ഒഴിവാക്കി, മനുഷ്യനും പ്രകൃതിയും സഹജീവിയ്ക്കുന്ന, സ്വാസ്ഥ്യം ലഭിക്കുന്ന ഒരിടം നിർമ്മിയ്ക്കാനാണ് ഞങ്ങൾ ശ്രമിച്ചത്. നിർമ്മാണത്തിൽ വരുന്ന പാരിസ്ഥിതിക ആഘാതത്തിൻ്റെ ഉത്തരവാദിത്വം രൂപകൽപ്പന ചെയ്യുന്നവർക്കാണ്. ഒപ്പം, Sustainable option തിരഞ്ഞെടുക്കുന്നവർക്ക് ഏറ്റവും മികച്ചത് കൊടുക്കാനുള്ള ചുമതലയും. ആഗോളതാപനം എന്ന യാഥാർത്ഥ്യത്തിനും, കെട്ടിട നിർമ്മാണത്തിൽ സുസ്ഥിര മാതൃകകൾ പിന്തുടരേണ്ടത് എത്രകണ്ട് പ്രധാനമാണ് എന്നതിനും നമുക്ക് ചുട്ടു പൊള്ളിയ ഈ വേനലിൻ്റെ സാക്ഷ്യം മതിയല്ലോ!

     പച്ചപ്പ് നിറഞ്ഞ ആ പറമ്പിൽ അത് മുഴുവനും ആസ്വദിക്കാവുന്ന രീതിയിലാണ് കെട്ടിടം വിഭാവനം ചെയ്തിട്ടുള്ളത്. മുൻവശത്തെ വരാന്തയിലേക്ക് കയറുന്നത് പുറത്തെ നടുമുറ്റത്തിന് അഭിമുഖമായാണ്. അകത്ത് അങ്ങ് അടുക്കളയിൽ നിന്നുവരെ വീട്ടിലേയ്ക്ക് വരുന്നവരെ കാണാം എങ്കിലും വീടകത്തിന് വേണ്ട സ്വകാര്യത ഉറപ്പുവരുത്തുന്നത് ഈ നടുമുറ്റമാണ്. വരാന്തയിൽ ഒരറ്റത്ത് മുറ്റവും തോട്ടവും കണ്ടിരുന്നുള്ള ഒരു കൂട്ടം കൂടലിന് വരെ സൗകര്യമുണ്ട്. അവിടെനിന്ന് വീടിനുള്ളിലേക്ക് കയറുമ്പോൾ ആദ്യം കാണുക അകത്തെ നടുമുറ്റമാണ്. നടുമുറ്റത്തിന് അഭിമുഖമായി വരുന്ന അതത് ഇടങ്ങൾ എന്ന രീതിയിലാണ് ഇതിൻ്റെ രൂപകൽപ്പന. കാറ്റുകൊണ്ട് ഒരുച്ച മയക്കത്തിന് ഇവിടെ നടുമുറ്റത്തിനടുത്ത് ജനലുകളോട് ചേർന്ന ഇരിപ്പിടം തന്നെ ധാരാളം. കുട്ടികൾക്ക് പഠിക്കാനുള്ള സൗകര്യവും, ആട്ടുകട്ടിലിനോ ചാരിയിരിയ്ക്കാൻ ഒരു ചാരുകസേരയ്ക്കോ ഉള്ള സ്ഥലവും, വിശാലമായ ഒരു സ്വീകരണ മുറിയും, പൂജാമുറിയും, ഊണുമുറിയും, അടുക്കളയും എല്ലാം ഉണ്ട്; വേണ്ട സ്വകാര്യതയും സൗകര്യങ്ങളും ഉറപ്പുവരുത്തിത്തന്നെ. ആധുനിക സൗകര്യങ്ങളോടു കൂടിയ നാല് കിടപ്പുമുറികളാണ് ഇവിടെയുള്ളത്. മുകളിൽ ബാൽക്കണിയോടുകൂടിയ ഒരു ഫാമിലി ലിവിങും രണ്ടു കിടപ്പു മുറികളുമാണുള്ളത്. നടുമുറ്റവും ചുറ്റുമുള്ള വരാന്തയും രണ്ടു നിലകളെയും പരസ്പരം ബന്ധിപ്പിക്കുന്നു.

     വെട്ടുകല്ലും കരിങ്കല്ലുമാണ് ഇവിടെ ഉപയോഗിച്ച പ്രധാന നിർമ്മാണ വസ്തുക്കൾ. മേൽക്കൂര സ്റ്റീൽ ട്രസ് റൂഫിൽ ഓട് മേഞ്ഞതാണ്. താഴെ ceiling ഓടുമുള്ളത് ചൂട് കുറയ്ക്കാൻ സഹായിക്കുന്നു. തടി തൂണുകൾ പഴയ കെട്ടിടങ്ങളിൽ നിന്നും reuse ചെയ്തതാണ്. ചുമരുകളിൽ പലയിടത്തും plastering തന്നെ polish ചെയ്തിരിക്കുന്നത് കൊണ്ടും, മറ്റ് ചുമരുകൾ അത്പോലും ഒഴിവാക്കി വെട്ടുകല്ല് തന്നെ കാണാവുന്നത് പോലെ ആയതുകൊണ്ടും പെയിൻ്റിംഗ് വരുന്ന ഇടങ്ങൾ ഇവിടെ തീരെ കുറവാണ്. നടുമുറ്റത്തിലൂടെ വരുന്ന വെളിച്ചവും, യഥേഷ്ടം കൊടുത്തിട്ടുള്ള തടി ജനലുകളുമാണ് ഈ വീടിൻ്റെ ആർഭാടം. കാറ്റും വെളിച്ചവും നിറയെ ഉള്ളിലേയ്ക്ക് കൊണ്ടുവന്ന് അവർ അതിന് മാറ്റുകൂട്ടുന്നു.

     കൊല്ലം തോറും ഉണ്ണിയുടെ വീട് തിരഞ്ഞു വരുന്ന പൂതപ്പാട്ടിലെ പൂതവും പൂരോത്സവവുമെല്ലാം ഇവിടത്തുകാർക്ക് ജീവിതത്തിൻ്റെ ഭാഗമാണ്. ഈ വീട്ടിൽ, വെട്ടുകല്ലിൽ കമാനാകൃതിയിൽ ചെയ്ത നടുമുറ്റത്തിൻ്റെ കവാടങ്ങൾക്കരുകിൽ (laterite arches), മറ്റൊരു കുഞ്ഞുകവാടം പോലെയുള്ള തലയിലെ കോപ്പുമായി, ഒരു നാടോടിക്കഥയുടെ നൈർമ്മല്യത്തോടെ നിന്ന പൂതത്തിൻ്റെ കാഴ്ച കണ്ണിൽ നിന്നും മനസ്സിൽ നിന്നും മായാതെ നോക്കേണ്ടത് നമ്മളാണ്. എം.ടി യുടെതന്നെ പ്രയോഗം കടമെടുത്ത് പറഞ്ഞാൽ, വേരറ്റ ഒരു ജനതയെ വീണ്ടെടുക്കാൻ പറ്റുന്നത് ഒരുപക്ഷേ തേയ്മാനം വരാത്ത തങ്കക്കാശുപോലുള്ള ഇത്തരം ഓർമ്മകൾക്കായിരിയ്ക്കും!

This house is situated in the heart of a village that resonates with the literary legacies of MT Vasudevan Nair and Edassery, who immortalized Valluvanad's Pootham through his poem Poothapattu. The village offers a perfect atmosphere for a home surrounded by coconut and betelnut trees, and a long stone path leading to it.

Is an international style necessary for such a project? We believe it is not. By using locally sourced materials, we have aimed to create a harmonious space where man and nature coexist. Designers have a responsibility to minimize the environmental impact of construction and to provide the best sustainable options. This scorching summer serves as a stark reminder of global warming and the importance of adopting sustainable building practices.

The building is designed to be fully enjoyed within its lush green surroundings. The front porch offers a view of the outdoor patio, while inside, the courtyard ensures privacy and provides a focal point for the home's layout. From the kitchen, one can see visitors arriving. Entering the house, the inner courtyard is the first sight, with all main spaces oriented around it. There is ample window seating near the patio for a breezy nap, along with facilities for children's study, a cot or armchair for relaxation, a spacious living room, a prayer room, a dining room, and a kitchen. Privacy and modern amenities are well-integrated, with four bedrooms on the ground floor and a family living room with a balcony and two additional bedrooms upstairs. The courtyard and surrounding veranda seamlessly connect the two floors.

The main building materials are laterite blocks and stone, with tiled roof supported by a steel truss. The lower tiled ceiling helps to reduce heat. Wooden pillars reused from old buildings add character and sustainability. Many walls feature polished plaster, while others reveal the laterite walls, resulting in minimal painted surfaces. The light streaming through the courtyard and custom wooden windows is a highlight, enhancing the house with natural ventilation and illumination.

Every year, the Pootham in Poothapattu, which come seeking Unni's house, are integral to life here. This house captures the timeless serenity and cultural essence of the region, with its graceful laterite arches evoking the charm of a folktale. As MT Vasudevan Nair aptly put it, such enduring memories, as precious as gold, can redeem a lost nation.

Photo Gallery

Photographs By Ar. Prasanth Mohan, RunningStudios www.runningstudios.in